用途:
该机组生产的硬质棉主要用于生产:
新型化纤椰棕床垫,主要材料椰棕丝、涤纶短纤,不含胶水、甲醛等有害物质,具有无毒、无味、防火、符合欧州环保水平。用于高级床垫、沙发垫等。
化纤硬质棉是海绵的替代品,主要材料涤纶短纤,无毒、无味、防火、符合欧州环保水平。用于高级床垫、沙发垫、过滤材料、吸音毡等
使用该设备投入生的己有130多套,(棕宝)椰棕有限公司、昆山吉美川纤维科技有限公司、广东博罗德尔康、广东南海九江镇垣东海棉厂、江苏苏州摩维苏州摩维天然纤维材料有限公司等公司均有数套在生产。
主要规格:
产品宽度:2700~4500
加热温度:常温~220°C
热源:直燃天然气,外加导热油热交换,外加热风
产量:30~35T每天
热耗:20~40万大卡
产品克重:100~6000克/㎡
产品厚度:10mm~200mm
线速:2m~12m/min
结构特点:
①烘房采用双铁氟龙网带,上风槽与网带同步升降。
②上吹下吸、下吹上吸加压穿透加热。
③风压大小变频调节,热风对流循环。
④热效率高,产品受热均匀,产品(厚度,硬度,定形)稳定,
⑤ 裁切采用移动平如式切割,分切时移动平台保持与烘房线速同步,从而保持烘房均速,裁切精度±1mm。
⑥烘房每节温度,速度,风压,产品厚度,产品切割长度,均由全自动人机界自动控制。
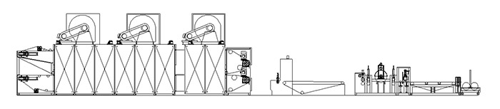
生产工艺流程:
热烘房→冷压定机→冷却定形烘房→罗拉→分条纵裁→罗拉→移动平台式飞刀裁断。









技术支持:
